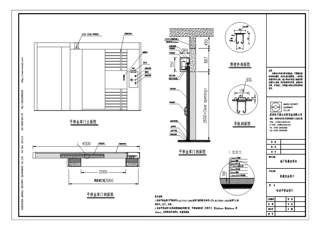
一、金库门(锁)的执行技术标准
1、金库门的制造和安装符合中华人民共和国金融行业标准(金库门JR/T0001-2000)和中华人民共和国公共安全行业标准(金库门通用技术条件GB/37481-2019)。
2、金库门用组合密码锁符合中华人民共和国金融行业标准(组合锁JR/T0002-2000)和中华人民共和国公共安全行业标准(金库门通用技术条件GB/37481-2019)IR类要求。
3、产品通过公安部安全与警用电子产品质量检测中心的检验。
4、金库门性能需求,达到3级或C级防护标准,抗强力破坏的净工作时间不小于2小时,耐火极限时间达到6个小时。强力破坏工具包括:各种普通手工工具、便携式机械或电动工具、硬质合金钻头、施压装置或机械、砂轮、动力锯、钻孔工具、助熔棒和切割炬等。

二、不锈钢金库门规格
金库门外框尺寸:高2000mm×宽2400mm
三、大门金库门的结构及性能
金库门的基本结构包括:门框、门扇、铰链、门栓开合机构、三锁联动装置等。
1、不锈钢门框结构
门框由前框、后框、内外侧板、连结板、加强筋板组成。
采用40#槽钢及4mm钢板冷加工折弯焊接成形。外表面包覆1.2mm厚SUS304防磁丝纹不锈钢板。前框安装铰链处内垫10mm厚钢板,门框内腔作加强筋板,确保整体刚性。门框四周作止口,门框开启侧各镶装6个不锈钢锁栓孔套。
2、门扇结构
门扇由主门板、防钻防切割层填充材料、外饰板、后盖板组成。
门扇内腔设置锁栓传动机构、进口组合密码锁、三锁联动装置。防护层厚度120mm厚,其结构为:防护层为1.2mm不锈钢+10mm钢板+30mm防钻板+32mm钢筋混凝土+40mm防火层+4mm钢板+2mm不锈钢。具有防火、防腐、防钻、防电弧功能。防护级别为人总行《金库门JR/T0001-2000》标准:3级,抗强力破坏净工作时间大于2小时。等同于公安部《金库门通用技术条件GA/T143-1996》C级。
后盖板采用1.2mm厚SUS304防磁丝纹不锈钢板制作,并有改变密码号的小孔,方便使用。
3、门轴
门轴由铰链板、上铰链体、下铰链体、铰链轴、向心球轴承、单向推力球轴承、等组成。
门铰链设计承重力50KN。上下铰链体内镶装推力轴承与向心轴承,保证门扇开启轻便灵活,一人可自如开闭,开启力不大于80N。
4、门闩开合机构
门闩开合机构由操作手轮、齿轮、齿条、锁栓导向套、锁栓连接板、轴承等部件组成。
门扇开启侧有6个φ38实心不锈钢锁栓固定于锁栓连接板上。由轴承滑道支承,每个锁栓通过导向套向外升出。性能特点:
(1)门闩开合机构由轴承滑道支承,并且每个锁栓通过导向套向外升出,因此具有操作运动灵活,定位精密准确。经久耐用。门闩开启力不大于30N。
(2)具有可靠的防撬、防盗、防破坏能力,即使外力破坏掉裸露在外的门铰链,门扇也不能被打开。
5、三锁联动装置
三锁联动装置由滑板座、滑板盖、上下滑板、斜面滑板、导向座等部件组成。
三把沙金6730组合密码锁分别与三锁联动装置的三个斜面滑板连接。由于该装置的特殊工作原理,可以实现在三把锁中任意开启两把密码锁,门即可开启的功能。
6、锁具配置
金库门配置三把由S&G公司生产的6730组合密码锁。机械密码锁经过美国“UL”认证。锁的密码组合不小于108,锁具符合金融行业标准《组合锁JR/T0002-2000》中的等级标准。
外形尺寸:1、刻度盘直径¢73*厚28mm;2、底碟直径¢95*厚19mm
密码锁锁舌伸出长度为20mm,其锁舌与孔配合间隙为1mm,机械密码锁在承受3000N侧向静压力后,锁可以正常使用,密码锁刻度盘在承受1600N静拉力作用和50Nm扭矩后,转动芯轴无明显损坏,传动机构能正常工作,开锁的锁舌机构使用寿命不小于1X105次,密钥量不小于1X105种,防技术开启时间为大于1440min。
7、格栅门
格栅门由304型材及圆管等焊接而成,锁具配备金点子防盗锁,防止金库进出的尾随。
8、防水
金库门门扇配备有防水压紧机构,门扇四周镶有防水密封胶条,关紧门扇后,整樘金库门在5m的水深,经过30min门体无渗水。

四、应急小门的结构及性能
1、门框结构
门框与大门门扇为一体设计,增加小门的防护安全,门框表面包覆1.2mm厚SUS304防磁丝纹不锈钢板。前框安装铰链处内垫10mm厚钢板,门框内腔作加强筋板,确保整体刚性。门框四周作止口,门框开启侧各镶装2个不锈钢锁栓孔套
2、门扇结构
门扇由主门板、防钻防切割层填充材料、外饰板、后盖板组成。
门扇内腔设置锁栓传动机构、进口组合密码锁、三锁联动装置。防护层厚度120mm厚,其结构为:防护层为1.2mm不锈钢+10mm钢板+30mm防钻板+32mm钢筋混凝土+40mm防火层+4mm钢板+2mm不锈钢。具有防火、防腐、防钻、防电弧功能。防护级别为人总行《金库门JR/T0001-2000》标准:3级,抗强力破坏净工作时间大于2小时。等同于公安部《金库门通用技术条件GA/T143-1996》C级。
后盖板采用1.2mm厚SUS304防磁丝纹不锈钢板制作,并有改变密码号的小孔,方便使用。
3、门轴
门轴由铰链板、上铰链体、下铰链体、铰链轴、向心球轴承、单向推力球轴承、等组成。
门铰链设计承重力50KN。上下铰链体内镶装推力轴承与向心轴承,保证门扇开启轻便灵活,一人可自如开闭,开启力不大于80N。
4、门闩开合机构
门闩开合机构由操作手轮、齿轮、齿条、锁栓导向套、锁栓连接板、轴承等部件组成。
门扇开启侧有2个φ38实心不锈钢锁栓固定于锁栓连接板上。由轴承滑道支承,每个锁栓通过导向套向外升出。性能特点:
(1)门闩开合机构由轴承滑道支承,并且每个锁栓通过导向套向外升出,因此具有操作运动灵活,定位精密准确。经久耐用。门闩开启力不大于30N。
(2)具有可靠的防撬、防盗、防破坏能力,即使外力破坏掉裸露在外的门铰链,门扇也不能被打开。
5、锁具配置
金库门配置两把由S&G公司生产的6730组合密码锁。机械密码锁经过美国“UL”认证。锁的密码组合不小于108,锁具符合金融行业标准《组合锁JR/T0002-2000》中的等级标准。
外形尺寸:1、刻度盘直径¢73*厚28mm;2、底碟直径¢95*厚19mm
密码锁锁舌伸出长度为20mm,其锁舌与孔配合间隙为1mm,机械密码锁在承受3000N侧向静压力后,锁可以正常使用,密码锁刻度盘在承受1600N静拉力作用和50Nm扭矩后,转动芯轴无明显损坏,传动机构能正常工作,开锁的锁舌机构使用寿命不小于1X105次,密钥量不小于1X105种,防技术开启时间为大于1440min。
6、防水
金库门门扇配备有防水压紧机构,门扇四周镶有防水密封胶条,关紧门扇后,应急门门在5m的水深,经过30min门体无渗水。
7、格栅门
格栅门与大门格栅为一体设计,在大门格栅上用304型材及圆管等焊接成一扇应急小门,锁具配备金点子防盗锁,防止应急门进出的尾随











客服QQ:38219871